案例分享 | 172㎡的精致高雅,是你梦想中的家吗?

2022年06月16日

主案设计师:王会坤

项目面积:172

项目地址:中国 · 佛山

项目风格:现代简约

 

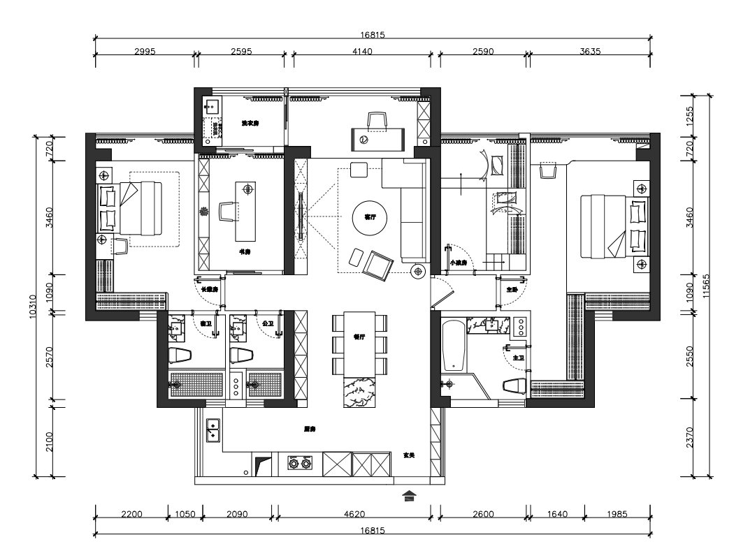
项目平面图

 

 

▲入户玄关 | 一器一物皆风景

Entrance | full of scenery

 

进门第一眼所看到的场景决定了家的整体氛围,入墙定制柜+悬空鞋柜,将出入的痕迹收纳进看不见的空间,目之所及,一器一物皆是风景,增加入户仪式感的同时也注入了家的温度。

 

 

开放式餐厨的仪式感

 

 


作为最富有烟火气的餐厅和厨房区域,最能展现生活的滋味。开放式的餐厨空间,其乐融融地备餐或者用餐都是一种享受。

 

 

餐厅以深灰色为主色调,枣红色餐椅调和之,透着淡淡的烟火气。岛台连接着餐桌,让用餐更具仪式感。

 



厨房以实用功能为主,定制橱柜将一些厨房用品以及烘培用具尽数收纳。酒柜用玻璃材质的柜门加上氛围灯光区,并巧妙地隐藏在墙壁中,视觉上更加通透明亮。

 

 

不被定义的精致生活

 

客厅才能代表一个家的审美格调

 

悬空高柜设计+嵌入式电视的设计提升了墙面的整体性,物品分类存储,满足屋主收纳需求。背景墙采用 格栅板的竖直线条与木纹这些永不过时的元素。

 

 

 

家具兼具柔和的色彩和曲线的姿态,是对现代时尚生活的追寻。岩板茶几、深灰色沙发、墨绿色休闲椅、构建出层次丰富的客厅空间

软装饰品的搭配随性自由,多以布艺、金属、玻璃材质为主,在感官上定义了低调奢华的基调。

 

 

在喧嚣的都市,能让心静下来的地方,我想那一定是在余香缭绕的茶台前。内敛的色泽,温润的材质,无论是独自饮茶,还是以茶会友,都是最好的情感连接。

 

 

从客厅到书房,造型大气的整面书柜,不仅包罗各类书籍,亦可将私人珍藏装点其中。时尚又精致的书桌椅与书柜呼应,构成静谧的阅读氛围。

 

 用细节来表达空间质感

 

打破功能“越多越好”的模式化,我们希望卧室是一个安静且舒适的空间,不需要复杂的装饰。

 

▲主卧 | 静谧的高级感

Master bedroom | quiet superior 

主卧颜色几乎都是低饱和度的颜色组成,背景墙的柔软细腻,予人冷静安谧的视觉感受。简单的拼色设计装出高级感和视觉冲击。

 

 

主卧衣帽间,一门到顶的设计和竖直线条,免拉手设计,有效拉伸空间视觉高度,不显逼仄。一种时尚而又充满韵味感的现代生活写照由此而生。

 

▲长辈房|干净素雅

The elder's room | clean and elegant

 

▲男孩房|阳光和朝气

Boys' room | sunshine and vitality

 

多种色彩搭配传递情感,营造出清新、活泼的氛围。男孩喜欢奥特曼,考虑到这一点,房间内摆件饰品多结合卡通元素,极大地满足了功能性和个性化。

 

 

家是人情感归属的空间,通过对每个家人的年龄、文化、背景的探知,才能够打造一个舒适而独特的家。LIFEMASTER希望呈现的家不仅是一个空间,而是可以在这里成年累月生活的家,是一种愉悦舒适的生活方式。